About 5015 Sw 105th Ave
3 bedroom and 2 bathroom split floor plan home in the highly sought after Cooper City! Perfectly located steps from the neighborhood park which is great for children to play. This home has a pool, screened in patio, vaulted ceilings, and so much more.
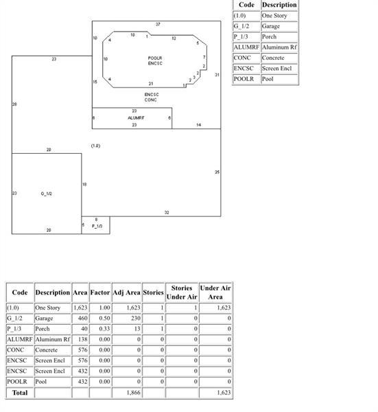
Features of 5015 Sw 105th Ave
| MLS® # | F10525184 |
|---|---|
| USD | $640,000 |
| CAD | $895,667 |
| CNY | 元4,550,688 |
| EUR | €549,469 |
| GBP | £479,941 |
| RUB | ₽50,722,624 |
| Bedrooms | 3 |
| Bathrooms | 2.00 |
| Full Baths | 2 |
| Total Square Footage | 7,500 |
| Living Square Footage | 1,623 |
| Acres | 0.00 |
| Year Built | 1979 |
| Type | Residential |
| Sub-Type | Single |
| Restrictions | No Restrictions |
| Style | One Story |
| Unit Floor | 0 |
| Status | Pending |
| HOPA | No HOPA |
| Membership Equity | No |
Community Information
| Address | 5015 Sw 105th Ave |
|---|---|
| Area | 3200 |
| Subdivision | The Country III 85-38 B |
| City | Cooper City |
| County | Broward |
| State | FL |
| Zip Code | 33328-4922 |
Amenities
| Parking Spaces | 2 |
|---|---|
| Parking | Driveway |
| # of Garages | 2 |
| View | Pool Area View |
| Is Waterfront | No |
| Has Pool | Yes |
| Pool | Below Ground Pool |
| Pets Allowed | No |
| Subdivision Amenities | Exercise Room, Park, Paved Road |
Interior
| Interior Features | First Floor Entry, Walk-In Closets, 3 Bedroom Split, Vaulted Ceilings |
|---|---|
| Appliances | Dryer, Washer |
| Heating | Central Heat |
| Cooling | Central Cooling |
| Fireplace | No |
Exterior
| Exterior Features | Fence, Patio, Screened Porch |
|---|---|
| Lot Description | < 1/4 Acre |
| Roof | Comp Shingle Roof |
| Construction | Concrete Block Construction |
Additional Information
| Days on Market | 51 |
|---|---|
| Zoning | R-1A |
| Foreclosure | No |
| Short Sale | No |
| RE / Bank Owned | No |
Listing Details
| Office | LoKation |
|---|---|
| Phone No. | (754) 246-7147 |
